7912 3rd Avenue
$ 1,795,000
Description
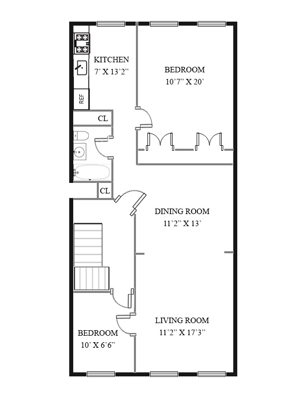
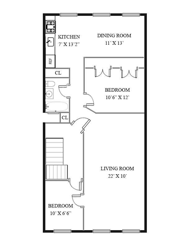
ON THE MARKET FOR THE FIRST TIME! Mixed Use Building with 2 Modern Two-Bedroom apartments and fully equipped bar. The apartments feature newer kitchens and baths, hardwood floors throughout, high ceilings, and exposed brick walls. Each unit is approximately 1100 SF. The ground floor is 20×80 equalling 1,600 sf and comes with a full basement. The building has a brand new roof with warranty, newer mechanicals, and will be delivered vacant! Located on bustling 3rd avenue, this property is a step away from all of the amenities in Bay Ridge as well as the R-train to the city. Great as an investment property or owner user! Contact us for all the details!
Features
Features:
- Apartments
- Basement
- Commercial
- Exposed Brick
- Hardwood Floors
- New Mechanicals
- New Roof
- Store
Agent










